




✂️ Realizzabile su misura senza alcun sovrapprezzo
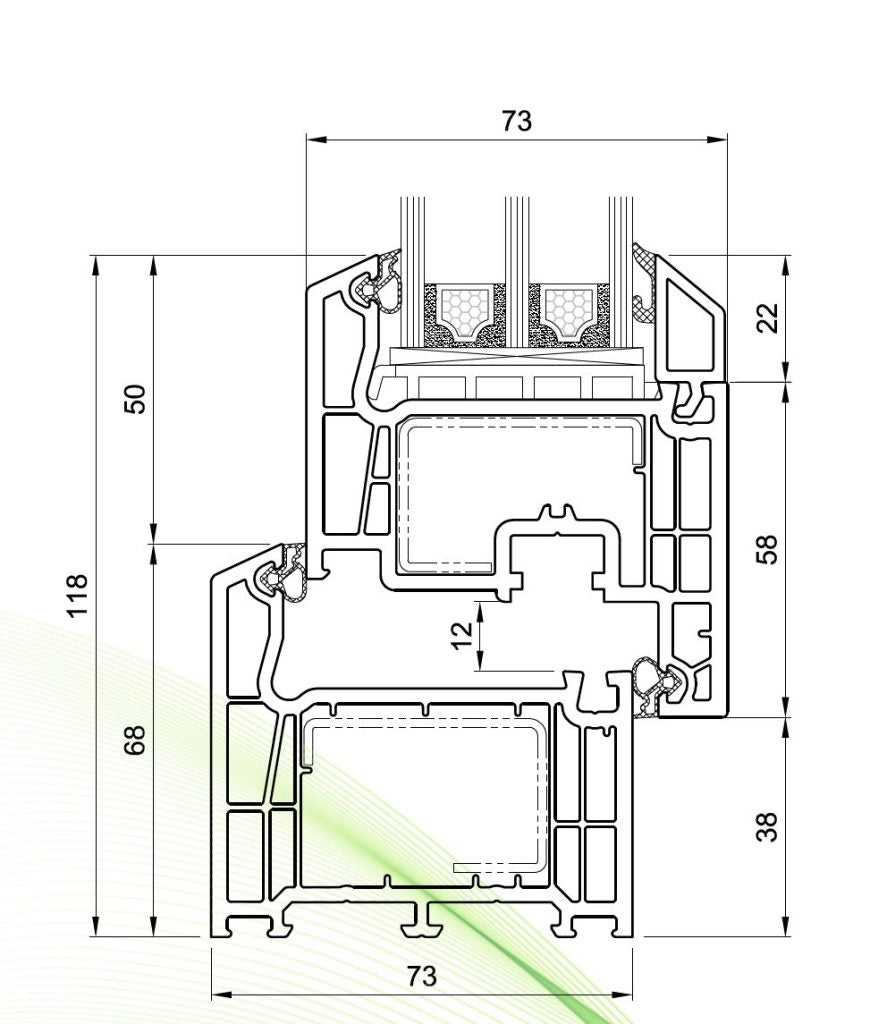
🪟 Sistema di infissi realizzato con profili inPVC Brugmann Blu Evolution 73 – Salamander, sinonimo di efficienza e durata nel tempo.
Infisso in pvc bianco con apertura a vasistas/ribalta , perfetta per ristrutturazioni e nuove costruzioni .
Garantisce un eccellente isolamento termico e acustico , grazie al profilo multicamera e al vetro camera basso emissivo .
Il prodotto è su misura , certificato , compatibile con le detrazioni fiscali 2025
⚙️Caratteristiche Tecniche
- Vetro camera di serie: 4+18+33,1 Pun 4S con gas argon e Warm Edge ( bordo caldo )
- Doppia guarnizione per una maggiore tenuta
- Portefinestre con vetro camera antinfortunistico 33.1+15+33,1 Pun 4S , sempre con gas argon e bordo caldo
- Ferramenta a nastro con apertura a ribalta e funzione microventilazione
- Fermo uno scatto sull'anta secondaria
- Soglia ribassata e gocciolatoio per le portefinestre
- Maniglia e accessori in colore argento
PVC BIANCO 25 GG LAVORATIVI
PVC EFFETTO LEGNO 45 GG LAVORATIVI
CORRIERE FERCAM
Che cos’è il profilo bluEvolution 72 di Salamander?
bluEvolution 72 è un sistema di infissi in PVC a 5 camere con profondità di
72 mm, pensato per garantire isolamento termico, acustico ed efficienza
energetica in un design moderno ed essenziale.
Quali colori e finiture sono disponibili?
Sono disponibili versioni in PVC bianco e pellicolati effetto legno o tinte
moderne (opache o satinate). Le pellicole decorative sono resistenti a raggi
UV, agenti atmosferici e scolorimento.
Che tipo di vetro è incluso?
Di serie è montato un vetro camera 4+18+33.1 PVB 4S, con gas Argon e bordo
caldo Warm Edge, per un migliore isolamento termico.
Nelle portefinestre è incluso un vetro antinfortunistico 33.1+15+33.1 PVB 4S,
sempre con gas Argon e Warm Edge.
Che tipo di ferramenta è utilizzata?
Tutti gli infissi sono dotati di ferramenta a nastro con apertura a ribalta e
funzione microventilazione, per un ricambio d’aria controllato.
L’anta secondaria è dotata di fermo a scatto.
Che isolamento termico garantiscono?
Il sistema, unito ai vetri selettivi e al bordo caldo, permette di
raggiungere valori di trasmittanza Uw fino a 1,3 W/m²K o inferiori, migliorando
l’efficienza energetica dell’abitazione.
Come sono rifinite le portefinestre?
Le portefinestre sono dotate di soglia ribassata, gocciolatoio e vetro camera
antinfortunistico, ideali per sicurezza e accessibilità.
Che accessori sono inclusi?
Le maniglie e gli accessori (cerniere, coperture, ecc.) sono forniti di
serie in colore argento, per un’estetica moderna e uniforme.
Quanto durano e che manutenzione richiedono?
Gli infissi in PVC Salamander hanno una durata media superiore ai 30 anni, con
manutenzione minima: basta una normale pulizia periodica, senza necessità di
verniciature.
Qual è la garanzia del prodotto?
Gli infissi in PVC bianco sono coperti da garanzia di 10 anni, mentre le
versioni pellicolate hanno una garanzia di 5 anni contro difetti di
fabbricazione e alterazioni estetiche.
Nella fornitura standard di infissi NON è compreso:
- CONTROTELAIO
- COPRIFILI
- SILICONE/SCHIUMA POLIURETANICA
- VITI DI FISSAGGIO
- CASSONETTO
Questi elementi vanno acquistati separatamente.