 
 
 
 
 
 
 
 
 
 
 
 
 
 
 

Materie prime, modelli esclusivi, competenza, talento degli artigiani specializzati e tecnologie avanzate caratterizzato alta qualità delle porte blindate Portalacasa by Bertolotto, interamente realizzate nel nostro Paese. Le porte e la creatività Made in Italy sono infatti un binomio identificante per il brand. Le porte sono interamente realizzate in Italia, costruite con materiali di prima scelta, realizzate su modelli esclusivi nati dalla comunione tra tradizione e nuove idee innovative, impiegando lavorazioni artigianali e tecnologia all’avanguardia, orgogliosamente italiane.
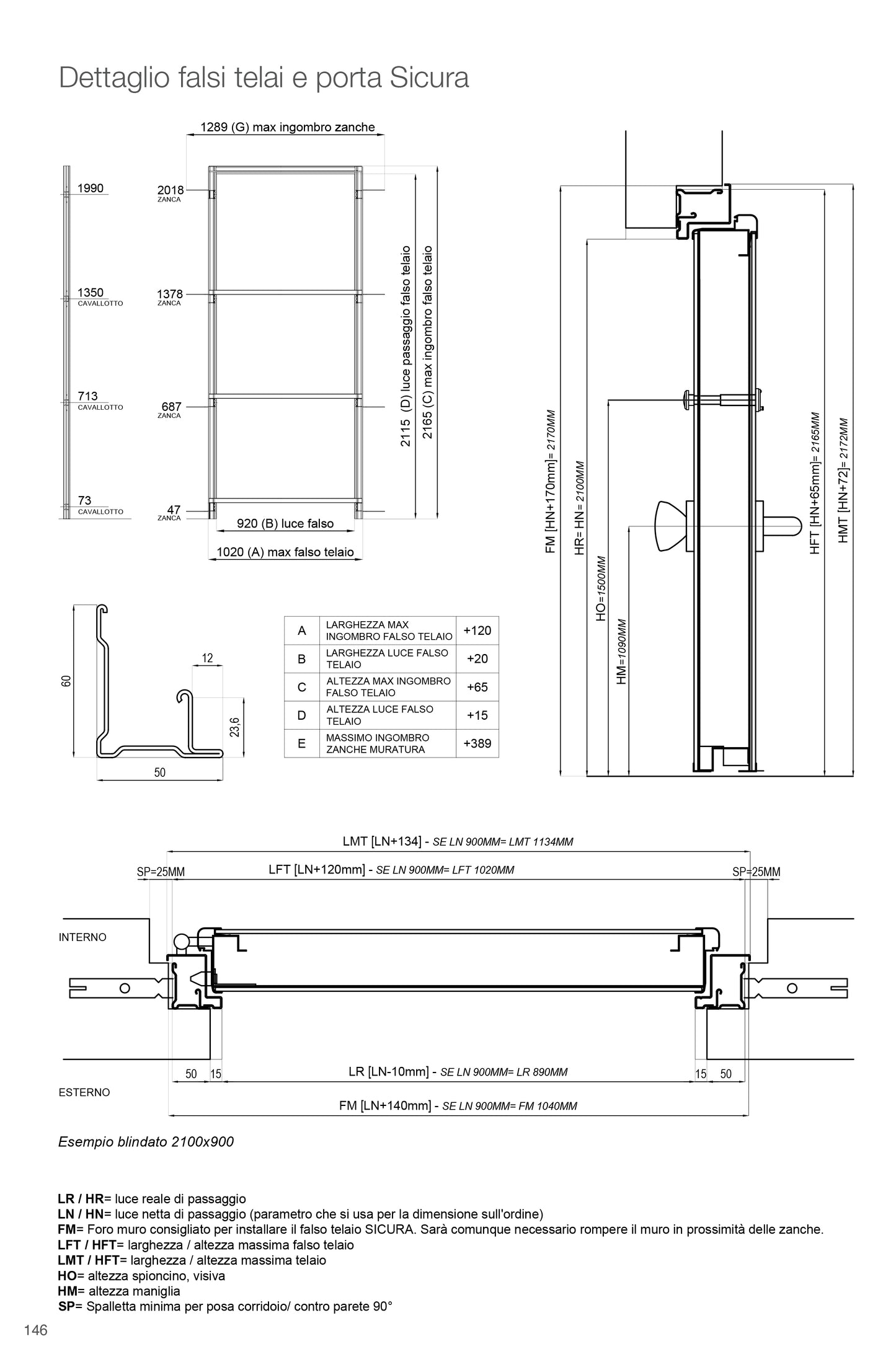
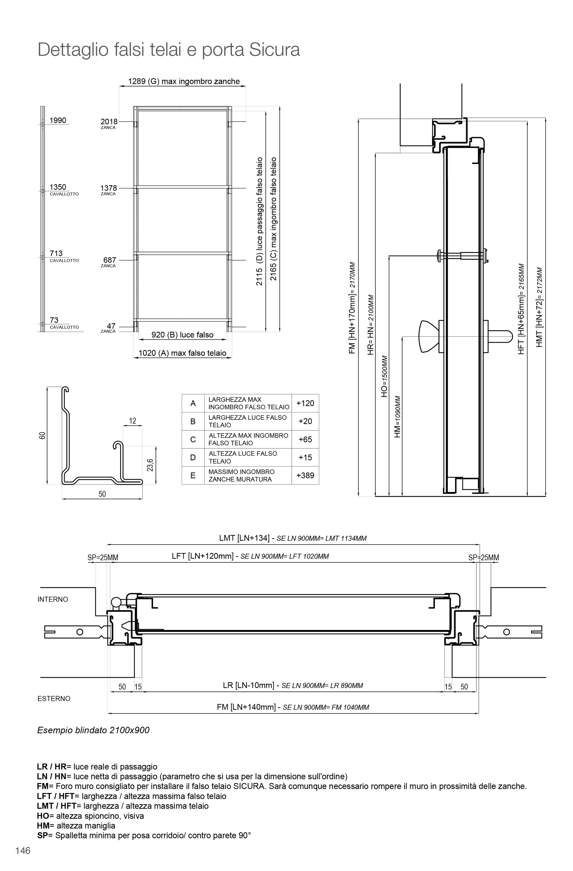
Porta blindata dotata di 7 punti di chiusura, con rinforzi verticali e due lamiere. Serratura a doppia mappa e dotata di 5 chiavi. Telaio e falso telaio inclusi.
- resistenza all’effrazione: classe di sicurezza 3 definita da normativa europea ENV1627. Questo elemento definisce la capacità del blindato di opporsi ai tentativi di intrusione con sistemi di chiusura e superfici antiscasso;
- isolamento termico: la porta d’ingresso soprattutto quella esterna deve limitare il passaggio del freddo e del caldo e proteggere dalle intemperie, garantendo massimo comfort abitativo.
- isolamento acustico e quindi protezione dai rumori esterni.
- estetica personalizzata: sarà possibile scegliere non solo il design del pannello di rivestimento esterno e interno del blindato ma anche la maniglia in modo da armonizzare il progetto d’arredo seguendo lo stile delle porte interne.
PORTE BLINDATE 15 GG LAVORATIVI
CORRIERE FERCAM
Che tipo di porta è?
Si tratta di una porta blindata Portalacasa by Bertolotto, interamente realizzata
in Italia, progettata per garantire elevati standard di sicurezza,
isolamento termico e acustico, uniti a un’estetica curata e
personalizzabile. È il perfetto equilibrio tra tradizione artigianale e
tecnologia all’avanguardia.
Che livello di sicurezza offre?
La porta è certificata in classe 3 antieffrazione secondo la normativa
europea ENV 1627.
È dotata di 7 punti di chiusura, rinforzi verticali, doppia
lamiera interna, e serratura a doppia mappa con 5 chiavi in
dotazione, per una protezione solida e affidabile.
Telaio e falso telaio sono inclusi?
Sì, telaio e falso telaio sono inclusi nel kit standard, per garantire
una posa corretta e una maggiore stabilità strutturale.
 Offre isolamento
dal freddo e dai rumori?
Sì, la porta garantisce un elevato isolamento termico, proteggendo dal
caldo, dal freddo e dalle intemperie.
Inoltre, offre ottimo isolamento acustico, riducendo in modo
significativo i rumori provenienti dall’esterno.
Posso personalizzare l’aspetto della porta?
Certo! La porta blindata Portalacasa by Bertolotto è completamente
personalizzabile: puoi scegliere il rivestimento interno ed esterno
e abbinare la maniglia allo stile delle porte interne e dell’arredo.
È adatta anche per esterni?
Sì, è perfetta anche come porta d’ingresso esterna, grazie alla sua
resistenza agli agenti atmosferici e alle eccellenti proprietà isolanti.
Che materiali vengono utilizzati?
Vengono impiegate materie prime di alta qualità, con lavorazioni
artigianali e tecnologie moderne, su modelli esclusivi sviluppati
internamente da Bertolotto.
Cosa significa "Portalacasa by Bertolotto"?
"Portalacasa" è la linea di prodotti firmata Bertolotto, pensata per
offrire porte di alta qualità a condizioni vantaggiose, con consegne
rapide e configurazioni ottimizzate, senza rinunciare al design e
alla sicurezza.
 
               
     
     
     
     
     
     
     
     
     
     
     
     
     
     
    