Passa alle informazioni sul prodotto
1 su 5

Portafinestra in PVC 1 anta 90x220

Portafinestra in PVC 1 anta 90x220

Prezzo di listino €781,00 EUR
Prezzo di listino Prezzo scontato €781,00 EUR
In offerta Esaurito

PREZZI IVA ESCLUSA

Larghezza
Altezza
Visualizza dettagli completi

✂️ Realizzabile su misura senza alcun sovrapprezzo


Infisso in pvc bianco con apertura a vasistas/ribalta , perfetta per ristrutturazioni e nuove costruzioni .
Garantisce un eccellente isolamento termico e acustico , grazie al profilo multicamera e al vetro camera basso emissivo .
Il prodotto è su misura , certificato , compatibile con le detrazioni fiscali 2025

⚙️Caratteristiche Tecniche

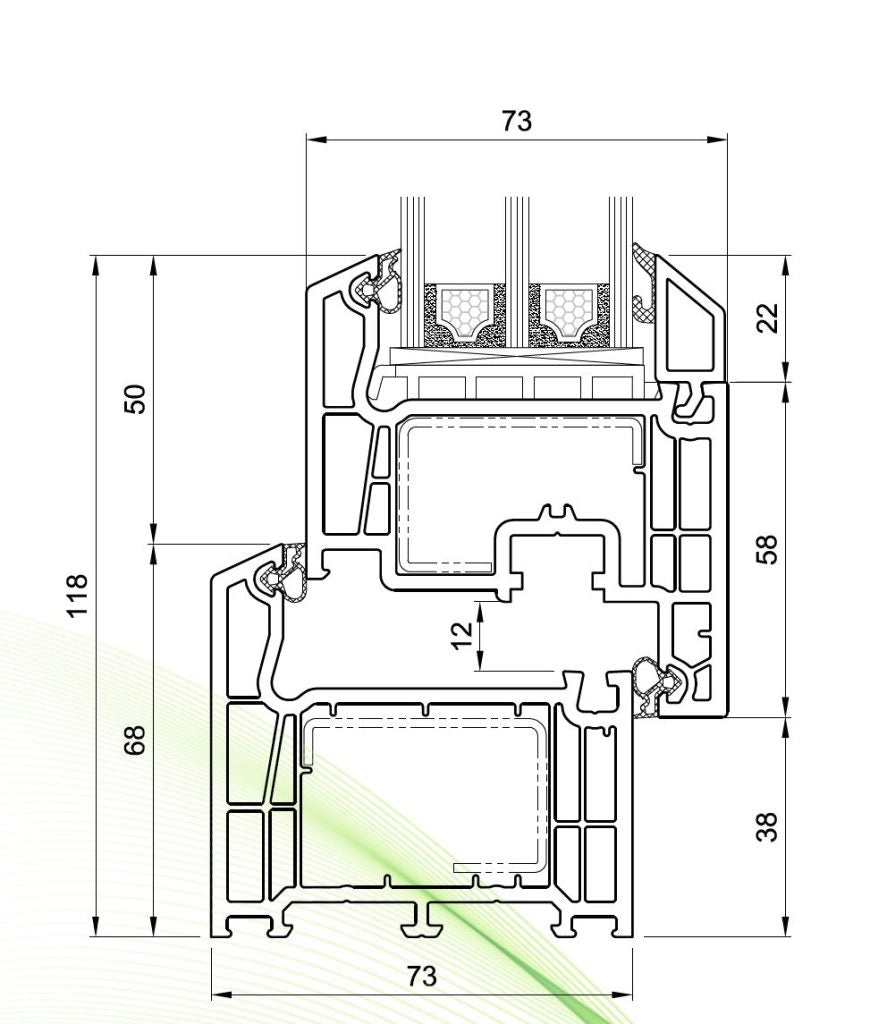
Profondità montaggio: 72mm

Spessore telaio+anta: 113mm

Camere isolamento: 5 camere

Rinforzo in acciaio: 1,5mm / 2mm

Tipi di apertura: 3 (anta ribalta, micro-ventilazione, battente)

Guarnizioni: 3

Vetro: Doppio o triplo (su richiesta)

Distanziatore termico: DuraTherm

Coefficiente termico: fino a Uw = 0,83 W/(m²K)

Ferramenta Maico: con punti di chiusura antieffrazione

  • Vetro camera di serie: 4+18+33,1 Pun 4S con gas argon e Warm Edge ( bordo caldo )
  • TRIPLA guarnizione per una maggiore tenuta
  • Portefinestre con vetro camera antinfortunistico 33.1+15+33,1 Pun 4S , sempre con gas argon e bordo caldo
  • Ferramenta a nastro con apertura a ribalta e funzione microventilazione
  • Fermo uno scatto sull'anta secondaria
  • Soglia ribassata e gocciolatoio per le portefinestre

PVC BIANCO 25 GG LAVORATIVI

PVC EFFETTO LEGNO 45 GG LAVORATIVI

CORRIERE FERCAM

Che cos’è il profilo bluEvolution 72 di Salamander?

bluEvolution 72 è un sistema di infissi in PVC a 5 camere con profondità di
72 mm, pensato per garantire isolamento termico, acustico ed efficienza
energetica in un design moderno ed essenziale.

Quali colori e finiture sono disponibili?

Sono disponibili versioni in PVC bianco e pellicolati effetto legno o tinte
moderne (opache o satinate). Le pellicole decorative sono resistenti a raggi
UV, agenti atmosferici e scolorimento.

Che tipo di vetro è incluso?

Di serie è montato un vetro camera 4+18+33.1 PVB 4S, con gas Argon e bordo
caldo Warm Edge, per un migliore isolamento termico.

Nelle portefinestre è incluso un vetro antinfortunistico 33.1+15+33.1 PVB 4S,
sempre con gas Argon e Warm Edge.

Che tipo di ferramenta è utilizzata?

Tutti gli infissi sono dotati di ferramenta a nastro con apertura a ribalta e
funzione microventilazione, per un ricambio d’aria controllato.

L’anta secondaria è dotata di fermo a scatto.

Che isolamento termico garantiscono?

Il sistema, unito ai vetri selettivi e al bordo caldo, permette di
raggiungere valori di trasmittanza Uw fino a 1,3 W/m²K o inferiori, migliorando
l’efficienza energetica dell’abitazione.

Come sono rifinite le portefinestre?

Le portefinestre sono dotate di soglia ribassata, gocciolatoio e vetro camera
antinfortunistico, ideali per sicurezza e accessibilità.

Che accessori sono inclusi?

Le maniglie e gli accessori (cerniere, coperture, ecc.) sono forniti di
serie in colore argento, per un’estetica moderna e uniforme.

Quanto durano e che manutenzione richiedono?

Gli infissi in PVC Salamander hanno una durata media superiore ai 30 anni, con
manutenzione minima: basta una normale pulizia periodica, senza necessità di
verniciature.

Qual è la garanzia del prodotto?

Gli infissi in PVC bianco sono coperti da garanzia di 10 anni, mentre le
versioni pellicolate hanno una garanzia di 5 anni contro difetti di
fabbricazione e alterazioni estetiche.

Nella fornitura standard di infissi NON è compreso:

  • CONTROTELAIO
  • COPRIFILI
  • SILICONE/SCHIUMA POLIURETANICA
  • VITI DI FISSAGGIO
  • CASSONETTO

Questi elementi vanno acquistati separatamente.

Resta connesso!

Seguici sui social per non perderti le nostre offerte

Tik Tok @showroom.infissi

Instagram Showroom Infissi

Facebook Showroominfissi

Tell your story

Tell your story

Tell your story

🔧🔎Hai bisogno di un sopralluogo qualificato o della posa in opera dei prodotti? Contatta i nostri installatori partner!⬇️⬇️⬇️

Hai bisogno di assistenza o di un prodotto personalizzato? Compila il form e otterrai subito la soluzione che fa per te!